STANDATA: 2024 Canadian Electrical Code Part 1, Section 6 – Services and Service Equipment
November 10, 2025
Purpose
To clarify Section 6 of the 2024 Canadian Electrical Code (CE Code), Part 1, which outlines the installation requirements for services, service equipment, and metering equipment.
Discussion
Rule 6-102 Number of supply services permitted Row housing type residential dwelling units Rule 6-102 permits a multi-unit residential building of a row house type to have more than one supply service, one to each self-contained occupancy, provided there is:
- a fire-separation, meeting the requirements of the National Building Code (NBC)2023– Alberta Edition,
separates each occupancy, and - each occupancy has a separate entrance with direct access to ground level.
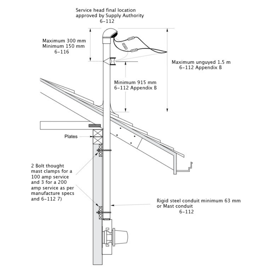
Rule 6-112 Support for the attachment of overhead supply or consumer’s service conductors or cables
(see Appendix B)
Point of attachment
Rules 6-112 and 6-116 clarify the requirements for point of attachment for overhead services and states the
following: - Use the mast kit manufacturer recommendation as per 2-024; and
- If a rigid conduit is being used or if there is no available manufacturer information, the specified distance in the
CE Code is observed.
o 6-112 2) d) service head location in compliance with the supply authority
o 6-112 App B max unguyed 1.5m
o 6-112 App B minimum point of attachment off the roofline 915mm
o 6-112 7) support bolt(s) through mast clamps
View the full bulletin: 24-ECB-006 Section 6 (REV1) – Services and service equipment
STANDATA bulletin : electrical : 2024 Canadian electrical code












